Kadett B Forum
Registrierung Kalender Mitgliederliste Teammitglieder Statistik Suche Häufig gestellte Fragen Galerie Zur Startseite

Kadett B Forum » Alles zum Kadett B » Werkzeuge » Erfahrung mit Hebebühne gefragt » Hallo Gast [Anmelden|Registrieren]
Letzter Beitrag | Erster ungelesener Beitrag Druckvorschau | An Freund senden | Thema zu Favoriten hinzufügen
Seiten (2): [1] 2 nächste » Neues Thema erstellen Antwort erstellen
Zum Ende der Seite springen Erfahrung mit Hebebühne gefragt
Autor
Beitrag « Vorheriges Thema | Nächstes Thema »
Julian
Hirsch

images/avatars/avatar-1205.jpg

Dabei seit: 06.07.04
Herkunft: 4591 Molln, Österreich

Erfahrung mit Hebebühne gefragt Auf diesen Beitrag antworten Zitatantwort auf diesen Beitrag erstellen Diesen Beitrag editieren/löschen Diesen Beitrag einem Moderator melden       Zum Anfang der Seite springen

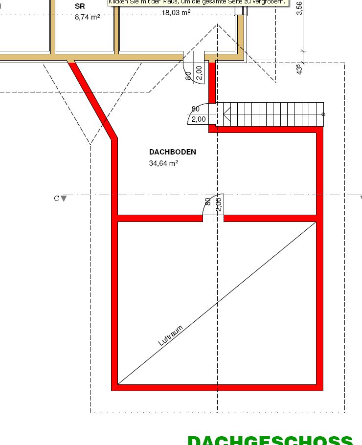
ich bin momentan in die Hausplanungs- und natürlich auch Garagenplanung eingetreten. Geplant ist u.a. eine Doppelgarage - nach oben genügend Luft, dass eine Hebebühne rein kann. Höhe wäre soweit geklärt, Tiefe der Garage ist 8 m, aber wie breit muss die Garage sein, damit links eine Hebebühne und rechts ein Fahrzeug Platz hat? Es wäre kein Problem, wenn man das Auto rechts rausfahren müsste um die Hebebühne links zu verwenden, aber lieber wärs mir anders...
wenn nötig kann die Garage auch noch einen halben Meter oder so breiter werden...
anbei ein Plan um sich zu orientieren...
geht sich das so aus mit 6,15m???
möchte übrigens eine 2-Säulen Bühne wie abgebildet, die wäre 3,5m breit...
sind Scherenbühne besser?

Welche bieten das beste Preis-Leistungsverhältnisse?

wie siehts mit der Bodenbeschaffenheit aus? Estrichdicke? So 25-30cm sollten reichen?
nötige Raumhöhe?

Julian hat diese Bilder (verkleinerte Versionen) angehängt:

 
   Dateigröße:    Dateiname: plan1.jpg

 

   Dateigröße:    Dateiname: plan2.jpg

 
   Dateigröße:    Dateiname: zweisaeulen4.jpg

 

   Dateigröße:    Dateiname: scheren2.jpg



__________________
Kadett B, 4-türige Limo Standard 1973; 2-Türer bis-Limo 2/67; USA Kadett 1.9 F-Coupe 1969; Combo C 1.6 CNG, 10/08; Audi A6 Avant C4 - AAT 1996; Seat Ibiza 1998;

Kadett B. Vorsicht, Vorteil.

Dieser Beitrag wurde 5 mal editiert, zum letzten Mal von Julian: 23.04.08 19.10.

23.04.08 18.41 Julian ist offline E-Mail an Julian senden Homepage von Julian Beiträge von Julian suchen Nehmen Sie Julian in Ihre Freundesliste auf AIM-Name von Julian: ???
BöseBerta
unregistriert
Auf diesen Beitrag antworten Zitatantwort auf diesen Beitrag erstellen Diesen Beitrag editieren/löschen Diesen Beitrag einem Moderator melden       Zum Anfang der Seite springen

...ich hab mir kürzlich einen Aufstellungsplan von Romeico schicken lassen...hab ich in der Firma, muss ich morgen nachgucken...
23.04.08 19.32
baker1959


images/avatars/avatar-1621.jpg

Dabei seit: 11.07.06
Herkunft: Regensburg, Stoapfalz

Auf diesen Beitrag antworten Zitatantwort auf diesen Beitrag erstellen Diesen Beitrag editieren/löschen Diesen Beitrag einem Moderator melden       Zum Anfang der Seite springen

Hi Julian,

an der Sache knapps ich grade auch dran.
Höhe brauche ich 4 Meter Lichte, da ich ab und an am VW schraube biggrin
Daher werde ich giebelseitig einfahren.

Die Mauer in Deinem Plan stört, da man nicht vernünftig um die Bühne rum kann. Die Mauer kann auch weg bleiben.
Wenn die Länge jetzt 10m ist, wäre +1m günstiger und dafür die Breite -0,5m.
Egal wo, die Säulen sind immer im Weg.
Ob die Lichte Höhe ausreichend ist, hängt von der Dachneigung ab. Das Haus schätze ich auf 42 Grad, somit auch die Garage.
Wenn die Bühne mit dem First fluchtet kann es klappen.

Scherenbühnen sind was für den Reifendienst nicht für den Autoschrauber.

Mit 25cm Estrich ist wohl die Bodenplatte aus WU Beton mindestens Güte B25 gemeint. Bei entsprechender Bewehrung, die der Bühnenhersteller vorgibt reicht das.

baker

__________________
You don't need to fear the 200HP below the seat,
you need to fear the one donkey sitting on top of it.
23.04.08 19.56 baker1959 ist offline E-Mail an baker1959 senden Beiträge von baker1959 suchen Nehmen Sie baker1959 in Ihre Freundesliste auf
Julian
Hirsch

images/avatars/avatar-1205.jpg

Dabei seit: 06.07.04
Herkunft: 4591 Molln, Österreich

Themenstarter Thema begonnen von Julian
Auf diesen Beitrag antworten Zitatantwort auf diesen Beitrag erstellen Diesen Beitrag editieren/löschen Diesen Beitrag einem Moderator melden       Zum Anfang der Seite springen

hm, die Dachneigung ist 38°. Die Höhe ist, denke ich ohnehin nicht das Problem.
Die Mauer in der Mitte brauche ich, da über der Einzelgarage links ein Dachboden (Teile biggrin ) ist (von außen zugänglich, Türen sind noch nicht eingezeichnet) ist, während rechts eben wegen der Bühne offen sein soll.
Ich denke, ich werde noch 1m dazu geben... dann hätte ich gut 7m Breite. face4
Meine Frau fragte schon "bauen wir Haus oder Garage?" - hmm, was wohl... biggrin

Julian hat dieses Bild (verkleinerte Version) angehängt:

 
   Dateigröße:    Dateiname: plan3.jpg



__________________
Kadett B, 4-türige Limo Standard 1973; 2-Türer bis-Limo 2/67; USA Kadett 1.9 F-Coupe 1969; Combo C 1.6 CNG, 10/08; Audi A6 Avant C4 - AAT 1996; Seat Ibiza 1998;

Kadett B. Vorsicht, Vorteil.

Dieser Beitrag wurde 1 mal editiert, zum letzten Mal von Julian: 23.04.08 20.10.

23.04.08 20.08 Julian ist offline E-Mail an Julian senden Homepage von Julian Beiträge von Julian suchen Nehmen Sie Julian in Ihre Freundesliste auf AIM-Name von Julian: ???
BöseBerta
unregistriert
Auf diesen Beitrag antworten Zitatantwort auf diesen Beitrag erstellen Diesen Beitrag editieren/löschen Diesen Beitrag einem Moderator melden       Zum Anfang der Seite springen

...sie haben Post...hab mal die Aufstellung weitergeleitet, da steht auch was von der Bodenbeschaffenheit...
24.04.08 06.03
Julian
Hirsch

images/avatars/avatar-1205.jpg

Dabei seit: 06.07.04
Herkunft: 4591 Molln, Österreich

Themenstarter Thema begonnen von Julian
Auf diesen Beitrag antworten Zitatantwort auf diesen Beitrag erstellen Diesen Beitrag editieren/löschen Diesen Beitrag einem Moderator melden       Zum Anfang der Seite springen

Zitat:
Original von BöseBerta
...sie haben Post...hab mal die Aufstellung weitergeleitet, da steht auch was von der Bodenbeschaffenheit...


tatsächlich? wo? confused

__________________
Kadett B, 4-türige Limo Standard 1973; 2-Türer bis-Limo 2/67; USA Kadett 1.9 F-Coupe 1969; Combo C 1.6 CNG, 10/08; Audi A6 Avant C4 - AAT 1996; Seat Ibiza 1998;

Kadett B. Vorsicht, Vorteil.
24.04.08 07.07 Julian ist offline E-Mail an Julian senden Homepage von Julian Beiträge von Julian suchen Nehmen Sie Julian in Ihre Freundesliste auf AIM-Name von Julian: ???
Kurt


Dabei seit: 01.03.07
Herkunft: Österreich

RE: Erfahrung mit Hebebühne gefragt Auf diesen Beitrag antworten Zitatantwort auf diesen Beitrag erstellen Diesen Beitrag editieren/löschen Diesen Beitrag einem Moderator melden       Zum Anfang der Seite springen

2 Säulenbühnen haben den Vorteil das man den Wagen wirklich weit aufheben kann.
Wenn du die Breite der Bühne weißt kannst du dich orientieren.
Wenn hinter der Bühne knapp eine Mauer steht kannst du erstens nicht vorbeigehen und zweitens tust du dich beim Abschmieren der Spindeln schwer also ich würde wenn möglich hinter den Säulen noch li und re. einen halben Meter mit einplanen.
Weiterer Nachteil kann sein das die Türen nicht ganz zu öffnen sind und das nervt wenn man was schweißen will!
Ich persönlich habe (weil sichs in meiner Garage mit der Bauhöhe nicht ausgeht) eine Paralellogrammbühne die hebt zwar nicht so hoch ist aber leicht verschiebbar da sie Räder hat und auch unter das Auto optimal platziert werden kann und Schweller Türen usw. sind frei zugänglich.

Top sind auch 4 Säulenbühnen mit extra Grubenheber in der Mitte die alle Möglichkeiten bieten - ist aber ein Geld und Platzproblem.

Eine weitere sehr gute Lösung hat ein Freund von mir verwirklicht.

Er hat sich eine Montagegrube gebaut die meiner Meinung nach sehr gut ist da man ab und zu nur mal kurz unters auto will und man dann nicht extra aufheben muß sondern einfach drüberfährt.
Und hat sich eine Bühne gekauft die einfach bei Bedarf li und re. mit den Scherenhebeeinheiten über die Grube geschoben wird um die Räder frei zu bekommen.
Wenn du künftig auch restaueriern oder herrichten willst würde ich einen Stellplatz so planen das ein Kippwagenheber Platz hat oder wo du z.B. einen fertig Lackierten Wagen bequem mit offenen Türen zusammenbauen kannst.

Soweit meiner Erfahrungen.

__________________
...nichts ist tot bevor es nicht vergraben ist!
24.04.08 07.28 Kurt ist offline E-Mail an Kurt senden Homepage von Kurt Beiträge von Kurt suchen Nehmen Sie Kurt in Ihre Freundesliste auf
MobilZoo
Kiemenbändiger

images/avatars/avatar-1030.jpg

Dabei seit: 30.03.04
Herkunft: Solingen

Auf diesen Beitrag antworten Zitatantwort auf diesen Beitrag erstellen Diesen Beitrag editieren/löschen Diesen Beitrag einem Moderator melden       Zum Anfang der Seite springen

aus eigener Erfahrung kann ich Dir sagen,
min. 6 m da wo die Bühne steht. Dann hast Du Platz wenn Du mal
seitlich einen längeren Hebel ansetzen musst.
Vorne würde ich 2m Platz lassen.
Was das Auto daneben angeht, so mit rausfahren, machst Du es auch im Winter ? Lieber so planen das der Wagen, daß der Wagen
stehen bleiben kann.

Friedhelm

__________________
Kieme EZ. 21.06.66 Royalblau
CarAVan 3trg. EZ.02.67 Alaskagrau
Olympia 4trg. EZ.16.06.68 Granada-Rot 1,9E
Was juckt`s ne alte Eiche, wenn sich ne Wildsau daran scheuert
24.04.08 07.31 MobilZoo ist offline E-Mail an MobilZoo senden Beiträge von MobilZoo suchen Nehmen Sie MobilZoo in Ihre Freundesliste auf
Julian
Hirsch

images/avatars/avatar-1205.jpg

Dabei seit: 06.07.04
Herkunft: 4591 Molln, Österreich

Themenstarter Thema begonnen von Julian
weniger Zeit für Kadetten Auf diesen Beitrag antworten Zitatantwort auf diesen Beitrag erstellen Diesen Beitrag editieren/löschen Diesen Beitrag einem Moderator melden       Zum Anfang der Seite springen

Tja, nun ist es soweit: wir und unsere Kadetten bekommen unser neues Zuhause.
Gestern tat der Bagger seine Arbeit, heute ist die Bodenplatte fertig. Wir machen eigentlich alles selbst.
Da bleibt nun keine Zeit fürs Schrauben, aber dann soll es umso besser werden... drückt mir die Daumen dass alles gut geht :-)

Julian hat diese Bilder (verkleinerte Versionen) angehängt:

 
   Dateigröße:    Dateiname: vorher.jpg

 

   Dateigröße:    Dateiname: nachher.jpg

 
   Dateigröße:    Dateiname: nachher2.jpg



__________________
Kadett B, 4-türige Limo Standard 1973; 2-Türer bis-Limo 2/67; USA Kadett 1.9 F-Coupe 1969; Combo C 1.6 CNG, 10/08; Audi A6 Avant C4 - AAT 1996; Seat Ibiza 1998;

Kadett B. Vorsicht, Vorteil.
13.07.10 20.21 Julian ist offline E-Mail an Julian senden Homepage von Julian Beiträge von Julian suchen Nehmen Sie Julian in Ihre Freundesliste auf AIM-Name von Julian: ???
skippy


images/avatars/avatar-1070.jpg

Dabei seit: 12.02.06
Herkunft: HH oder DU

Auf diesen Beitrag antworten Zitatantwort auf diesen Beitrag erstellen Diesen Beitrag editieren/löschen Diesen Beitrag einem Moderator melden       Zum Anfang der Seite springen

julian,

ich hab schon mal n haus gebaut...die elektrik komplett selber eingebracht (funktioniert bis heut :kopsmile ich wünsch dir gutes gelingen und sehr, sehr starke nerven....

es sei denn es ist ein fertighaus....

*daumendrück*

skippy

__________________
Zitat Walter Röhrl:

Der Unterschied zwischen Frontantrieb und Heckantrieb ist,
das man beim Frontantrieb sieht an welchen Baum man fährt.

Dieser Beitrag wurde 1 mal editiert, zum letzten Mal von skippy: 13.07.10 20.55.

13.07.10 20.54 skippy ist offline E-Mail an skippy senden Homepage von skippy Beiträge von skippy suchen Nehmen Sie skippy in Ihre Freundesliste auf
Kadetter
Schrottsammler

images/avatars/avatar-1457.jpg

Dabei seit: 03.04.07
Herkunft: Richtung RV (Ravensburg)

Auf diesen Beitrag antworten Zitatantwort auf diesen Beitrag erstellen Diesen Beitrag editieren/löschen Diesen Beitrag einem Moderator melden       Zum Anfang der Seite springen

Viel Glück und Erfolg, daß alles gelingt!

__________________
6x Kadett B, 1x Chevette, 1x Alltagsbenz, 1x Bedford Blitz

Trotz Abfuckprämie bleibe ich meinem Schrott treu. ...aus Überzeugung!!!
-- Mit Stil ans Ziel --
14.07.10 08.21 Kadetter ist offline E-Mail an Kadetter senden Homepage von Kadetter Beiträge von Kadetter suchen Nehmen Sie Kadetter in Ihre Freundesliste auf Fügen Sie Kadetter in Ihre Kontaktliste ein
inspector.kadett
G´studierter Braxer

images/avatars/avatar-1808.jpg

Dabei seit: 14.04.04
Herkunft: München-Obersendlin g

Auf diesen Beitrag antworten Zitatantwort auf diesen Beitrag erstellen Diesen Beitrag editieren/löschen Diesen Beitrag einem Moderator melden       Zum Anfang der Seite springen

schönes fleckerl habts euch rausgsucht, gratuliere!
den tips meiner vorredner möchte ich mich anschliessen: einen halben meter platz neben der bühne ist toll (türen auf, hebel ansetzen, steckachsen ziehen etc.) man kann nicht immer das auto runternehmen und andersrum wieder draufstellen.
zur bühne selbst kann ich sagen dass eine 2-säulen bühne mit kettenkasten zwar manchmal ein bisserl doof zum drüberrangieren ist, aber wir fahren ja keine brutal tiefergelegten gölfe, dafür ist die kette zuverlässig und langlebig. als oft unzuverlässig haben sich bühnen gezeigt die zwei motoren haben, die elektronisch synchronisiert sind. (ist blöd wenn ein motor plötzlich stehen bleibt, der andere weiterfährt)
wenn du es einrichten kannst, setz unter den zweiten stellplatz eine grube und schau ob du die einfahrt auf knapp 3 meter bekommst, wer weiss, vielleicht kommt irgendwann der weltreise - hanomag.
denk an den platz hinter der bühne , hier ist eine grosse stabile werkbank und ein regal für material und werkzeug, kompresor, schweisser etc gold wert.

ich hab noch nie ein haus gebaut beneide euch und wünsch ganz viel erfolg und durchhalte dingens.
d´ehre
Benno

__________________
72er Automatic Limo 12S ,
66er Kieme (nach 10 Jahren endlich in der Mache)
71er 4T Caravan (vive-la-France!)
1,75 to. Blitz Feuerwehr, Bj 56
14.07.10 08.51 inspector.kadett ist offline E-Mail an inspector.kadett senden Beiträge von inspector.kadett suchen Nehmen Sie inspector.kadett in Ihre Freundesliste auf
Scampi


images/avatars/avatar-2430.jpg

Dabei seit: 07.07.10
Herkunft: MKK

Auf diesen Beitrag antworten Zitatantwort auf diesen Beitrag erstellen Diesen Beitrag editieren/löschen Diesen Beitrag einem Moderator melden       Zum Anfang der Seite springen

Ich habe bei mir den Fehler gemacht, erst die Betonplatte zu giessen und dann die Bühne draufzustellen.

Wenn du noch die Möglichkeit dazu hast, würde ich das Grundgestell ebenerdig in den Boden einlassen. -- Sofern du eines hast. blink
So kannst du einfach ein- und ausfahren, ohne jedesmal über den Kettenkasten zu hoppeln.
Autos mit streikendem Motor müsste man da z.B. drüberschieben.

Ausserdem kommt die ganze Bühne dadurch noch etwas tiefer.
Autos mit wenig Bodenfreiheit können so immer noch problemlos angehoben werden.
Ich muss mit einem meiner Autos auf zwei Maurerbohlen fahren,
sonst passen die Schwenkarme gar nett drunter. Wandhauer


Gruß
Rolf
15.07.10 10.17 Scampi ist offline E-Mail an Scampi senden Beiträge von Scampi suchen Nehmen Sie Scampi in Ihre Freundesliste auf
Julian
Hirsch

images/avatars/avatar-1205.jpg

Dabei seit: 06.07.04
Herkunft: 4591 Molln, Österreich

Themenstarter Thema begonnen von Julian
Auf diesen Beitrag antworten Zitatantwort auf diesen Beitrag erstellen Diesen Beitrag editieren/löschen Diesen Beitrag einem Moderator melden       Zum Anfang der Seite springen

danke für die Glückwünsche und Tipps. Kann nur ergänzen, dass die "Doppelgarage" jetzt mit 7,20m Breite und 7m Tiefe gebaut wird. Und hoch genug sowieso, da keine Decke eingezogen wird, sondern über die Stabilität über Leimbinder kommt und die Garage so bis zum Dach geht (bei 38° Dachneigung sicher hoch genug).
Grube mag ich nicht, aber das mit Bühne einbetonieren klingt interessant. Leider hab ich noch keine Bühne und weiß deshalb auch nicht was ich da schalen muss... mal sehen. Bin eh kein Freund von tiefergelegten Peitscherlbuamautos :-)

__________________
Kadett B, 4-türige Limo Standard 1973; 2-Türer bis-Limo 2/67; USA Kadett 1.9 F-Coupe 1969; Combo C 1.6 CNG, 10/08; Audi A6 Avant C4 - AAT 1996; Seat Ibiza 1998;

Kadett B. Vorsicht, Vorteil.
15.07.10 20.34 Julian ist offline E-Mail an Julian senden Homepage von Julian Beiträge von Julian suchen Nehmen Sie Julian in Ihre Freundesliste auf AIM-Name von Julian: ???
Julian
Hirsch

images/avatars/avatar-1205.jpg

Dabei seit: 06.07.04
Herkunft: 4591 Molln, Österreich

Themenstarter Thema begonnen von Julian
Auf diesen Beitrag antworten Zitatantwort auf diesen Beitrag erstellen Diesen Beitrag editieren/löschen Diesen Beitrag einem Moderator melden       Zum Anfang der Seite springen

so, mittlerweile sind 3 Wochen vergangen. 6 Tage a 15 Stunden Maloche. EG und Garage sind fast fertig. Heute haben wir die Schalung über dem knapp 8 m breiten Garagentor und den darüber nötigen Eisenkorb geschafft. War schon ziemlicher Action. Die nächsten 4 Woche steht der 1. Stock und der Dachstuhl an (Holzriegelkonstruktion)... mühsam aber für den Fortschritt sind knapp 3 Wochen auch nicht sooo viel.

Julian hat diese Bilder (verkleinerte Versionen) angehängt:

 
   Dateigröße:    Dateiname: keller12.jpg

 

   Dateigröße:    Dateiname: keller25.jpg

 
   Dateigröße:    Dateiname: EG09.jpg

 

   Dateigröße:    Dateiname: EG14.jpg



__________________
Kadett B, 4-türige Limo Standard 1973; 2-Türer bis-Limo 2/67; USA Kadett 1.9 F-Coupe 1969; Combo C 1.6 CNG, 10/08; Audi A6 Avant C4 - AAT 1996; Seat Ibiza 1998;

Kadett B. Vorsicht, Vorteil.

Dieser Beitrag wurde 1 mal editiert, zum letzten Mal von Julian: 31.07.10 21.06.

31.07.10 21.02 Julian ist offline E-Mail an Julian senden Homepage von Julian Beiträge von Julian suchen Nehmen Sie Julian in Ihre Freundesliste auf AIM-Name von Julian: ???
Julian
Hirsch

images/avatars/avatar-1205.jpg

Dabei seit: 06.07.04
Herkunft: 4591 Molln, Österreich

Themenstarter Thema begonnen von Julian
Auf diesen Beitrag antworten Zitatantwort auf diesen Beitrag erstellen Diesen Beitrag editieren/löschen Diesen Beitrag einem Moderator melden       Zum Anfang der Seite springen

hier der eisenkorb über dem garagentor biggrin

und der aktuelle Stand. In 4 Wochen meld ich mich wieder... mal sehen wie es läuft. Kadettfahren oder gar daran Schrauben ist momentan leider gaaaaaaaaanz weit weg...

Julian hat diese Bilder (verkleinerte Versionen) angehängt:

 
   Dateigröße:    Dateiname: EG22.jpg

 

   Dateigröße:    Dateiname: EG27.jpg

 
   Dateigröße:    Dateiname: EG28.jpg



__________________
Kadett B, 4-türige Limo Standard 1973; 2-Türer bis-Limo 2/67; USA Kadett 1.9 F-Coupe 1969; Combo C 1.6 CNG, 10/08; Audi A6 Avant C4 - AAT 1996; Seat Ibiza 1998;

Kadett B. Vorsicht, Vorteil.
31.07.10 21.04 Julian ist offline E-Mail an Julian senden Homepage von Julian Beiträge von Julian suchen Nehmen Sie Julian in Ihre Freundesliste auf AIM-Name von Julian: ???
Julian
Hirsch

images/avatars/avatar-1205.jpg

Dabei seit: 06.07.04
Herkunft: 4591 Molln, Österreich

Themenstarter Thema begonnen von Julian
Auf diesen Beitrag antworten Zitatantwort auf diesen Beitrag erstellen Diesen Beitrag editieren/löschen Diesen Beitrag einem Moderator melden       Zum Anfang der Seite springen

so, mittlerweile hat sich wieder einiges getan. Garage (und Haus auch) stehen soweit. Die Größe der Garage und speziell die Höhe werden für die Bühne absolut ausreichend sein. Desweiteren kann ich die großen Leimbinder im Dach für Flaschzug/Werkstattkrank, etc... verwenden. Da kommt dann noch ein I-Träger drunter, dann kann ein Kran super bewegt werden.

Julian hat diese Bilder (verkleinerte Versionen) angehängt:

 
   Dateigröße:    Dateiname: rohbau_fertig02.jpg

 

   Dateigröße:    Dateiname: rohbau_fertig01.jpg



__________________
Kadett B, 4-türige Limo Standard 1973; 2-Türer bis-Limo 2/67; USA Kadett 1.9 F-Coupe 1969; Combo C 1.6 CNG, 10/08; Audi A6 Avant C4 - AAT 1996; Seat Ibiza 1998;

Kadett B. Vorsicht, Vorteil.
02.09.10 20.05 Julian ist offline E-Mail an Julian senden Homepage von Julian Beiträge von Julian suchen Nehmen Sie Julian in Ihre Freundesliste auf AIM-Name von Julian: ???
polarweiß


images/avatars/avatar-2183.jpg

Dabei seit: 20.02.09
Herkunft: Bayern

Auf diesen Beitrag antworten Zitatantwort auf diesen Beitrag erstellen Diesen Beitrag editieren/löschen Diesen Beitrag einem Moderator melden       Zum Anfang der Seite springen

Das sieht gut aus was Du da machst! Gutes Gelingen weiterhin!

Zwecks der Hebebühne: ich hatte mir vor Jahren eine gebrauchte Consul gekauft, diese hat etwa 5 oder 6 Jahre gehalten dann war sie kaputt. Rep. unwirtschaftlich da ich zuviel hätte reinstecken müssen. War halt eine gebraucht aus Werkstattbeständen, wenn die sowas abgeben ist es meist fertig mit der Welt.

Daher habe ich ne neue gekauft, und zwar eine Stertil Koni. Sie funktioniert hydraulisch, ist eine Zweisäulenbühne ohne Grundrahmen und tut mittlerweile seit 8 Jahren Dienst. Ich kann das Teil nur empfehlen. wenn Du Dich mit dem etwas höheren Kaufpreis angefreundet hast wist Du feststellen, dass das Ding echt klasse ist. Kein Vergleich zu Spindelbühnen! Ich möchte nicht mehr tauschen... biggrin

Anmerkung: Im Gegensatz zu der unten gezeigten hebt meine 3500kg, ich weiß nicht ob es die zwischenzeitlich nicht mehr gibt oder ob die bloß auf der HP nicht angezeigt wird.

http://stertil-koni.automechatronik.com/product/32572

__________________
Gruß

Wolfgang




Kadett mit OHV-Motor!
02.09.10 21.33 polarweiß ist offline E-Mail an polarweiß senden Beiträge von polarweiß suchen Nehmen Sie polarweiß in Ihre Freundesliste auf
Julian
Hirsch

images/avatars/avatar-1205.jpg

Dabei seit: 06.07.04
Herkunft: 4591 Molln, Österreich

Themenstarter Thema begonnen von Julian
Auf diesen Beitrag antworten Zitatantwort auf diesen Beitrag erstellen Diesen Beitrag editieren/löschen Diesen Beitrag einem Moderator melden       Zum Anfang der Seite springen

@polarweiß: danke für die Infos. Finde keine Preisangabe auf der homepage. Was hat dich die 3t-Bühne gekostet?

__________________
Kadett B, 4-türige Limo Standard 1973; 2-Türer bis-Limo 2/67; USA Kadett 1.9 F-Coupe 1969; Combo C 1.6 CNG, 10/08; Audi A6 Avant C4 - AAT 1996; Seat Ibiza 1998;

Kadett B. Vorsicht, Vorteil.
03.09.10 08.40 Julian ist offline E-Mail an Julian senden Homepage von Julian Beiträge von Julian suchen Nehmen Sie Julian in Ihre Freundesliste auf AIM-Name von Julian: ???
polarweiß


images/avatars/avatar-2183.jpg

Dabei seit: 20.02.09
Herkunft: Bayern

Auf diesen Beitrag antworten Zitatantwort auf diesen Beitrag erstellen Diesen Beitrag editieren/löschen Diesen Beitrag einem Moderator melden       Zum Anfang der Seite springen

Ich weiß nicht mehr was die Bühne einzeln gekostet hat, wir haben verhandelt, dann ging nix mehr und ich habe letztlich noch eine 15t-Presse und einen hydr. Getriebeheber dazu bekommen. Ich meine dass ich irgendwas um 3500,-- bezahlt habe (fürs kpl. Paket), aber nagel mich da mal nicht drauf fest, ich weiß es echt nicht mehr genau. Die Qualität iat aber m.E. über jeden Zweifel erhaben, siehste schon daran dass ich den Preis vergessen hab... smile .

__________________
Gruß

Wolfgang




Kadett mit OHV-Motor!
03.09.10 21.09 polarweiß ist offline E-Mail an polarweiß senden Beiträge von polarweiß suchen Nehmen Sie polarweiß in Ihre Freundesliste auf
Seiten (2): [1] 2 nächste » Baumstruktur | Brettstruktur
Gehe zu:
Neues Thema erstellen Antwort erstellen
Kadett B Forum » Alles zum Kadett B » Werkzeuge » Erfahrung mit Hebebühne gefragt

Impressum